tinydomo.com

TD Living-Sunrise 74 Duo KFW40 ready to move in including solar system with battery storage – ready for planning permission (Kopie) (Kopie)

TD Living-Sunrise 74 Duo KFW40 ready to move in including solar system with battery storage – ready for planning permission (Kopie) (Kopie)

109,900.00

Basic data:

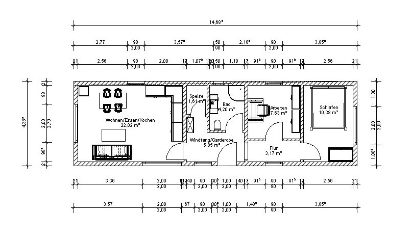
  • House length: approx. 7.40 m
  • House width: approx. 5.28 m
  • House height: approx. 3.95 m
    (Full room height on the first floor is 2.30 m and thus corresponds to a full storey)
  • Roof shape: 5-degree pent roof
  • Total usable area: approx. 48.89 sqm
  • Usable area of vestibule: 4.23 sqm
  • Usable area of bathroom: approx. 3.33 m
  • Usable area of living/dining and kitchen area: approx. 17.23 sqm
  • Usable area of bedrooms: approx. 6.33 sqm
  • Usable area of children’s/guest area (loft above bedrooms): approx. 10.11 sqm
  • Usable storage space (above vestibule/bathroom): approx. 7.66 sqm

Floor construction (from bottom to top):

  • Steel frame made of square profiles, fully hot-dip galvanized
  • Rubber sheet 5 mm
  • Aluminum sheet 2 mm
  • Airtight, vapor-permeable, and water-repellent underlayment
  • Wooden frame made of spruce/fir 100 x 40 mm
    (100 x 100 mm at the edges)
  • Insulation made of 100 mm EPS insulation boards
  • Multiplex board 15 mm
  • Insulating foil
  • Easy-care vinyl or laminate flooring in a choice of decor

Exterior wall construction of our vapor-permeable climate wall with a U-value of 0.14 W/m²K (from outside to inside):

  • Profiled wood cladding (vertical) made of 3D ThermoWood® Luna Trio 26 x 92 mm. Untreated, it develops a beautiful, naturally grayed patina. Lunawood products were among the winners in the “Sustainable Product” category at the Architecture MasterPrize 2021.
    Or, for an additional charge, a 2-layer, permeable mineral render in your choice of color.
  • Spruce/fir wooden battens, 20 x 40 mm
    (for mineral render: solid, permeable, lightweight VeroBoard® AllStar 20 mm expanded glass panel)
  • Airtight, permeable, and water-repellent underlayment.
  • Spruce/fir timber frame, 240 x 40 mm
    (240 x 100 mm at the corners and rafter support beams).
  • Insulation made of 240 mm mineral fiber. Or, for an additional charge, 240 mm Wood fiber
  • Vapor barrier
  • Profiled wood cladding (horizontal) made of spruce/fir
  • Interior paneling in the bathroom made of Fibo wall elements, a high-quality and aesthetic wall system with a 25-year warranty. The wall elements are available in a variety of styles, whether you prefer a traditional look, bold high-gloss colors, or nature-inspired tones like marble and concrete.
    Or, for an additional charge, in genuine natural stone veneer.

Ceiling structure (from top to bottom):

  • Easy-care vinyl or laminate flooring in a choice of decor.
  • Insulating foil.
  • Multiplex board 15 mm.
  • Load-bearing wooden ceiling beams made of spruce/fir, 100 x 40 mm.
  • Insulation made of 100 mm mineral fiber. Or, for an additional charge, in 100 mm wood fiber.
  • Profiled wooden cladding (horizontal) made of spruce/fir, 20 mm

Roof structure of our vapor-permeable climate roof with a U-value of 0.14 W/m²K
(from outside to inside):

  • Trapezoidal sheet metal roof painted in the color of your choice
  • Wooden battens made of spruce/fir, 20 x 40 mm
  • Airtight, vapor-permeable, and water-repellent underlayment
  • Wooden rafters made of spruce/fir, 240 x 40 mm
  • Insulation made of 240 mm mineral fiber or, for an additional charge, 240 mm wood fiber
  • Vapor barrier
  • Profiled wood cladding (horizontal) made of spruce/fir, 20 mm

Roof drainage:

  • Plastic gutters and downpipes.

Windows and entrance door with a U-value of 0,5 W/m²K:

  • Plastic entrance door with triple locking and 3 security keys, with tripple thermal insulation glazing in the color of your choice, size according to the floor plan drawing.
  • Plastic windows and French doors with tripple thermal insulation glazing in the color of your choice, size according to the floor plan drawing.

 Bathroom:

  • Semi-circular corner shower tray 80 x 80 cm with real glass shower cubicle made of laminated safety glass with 2 sliding doors and Designer shower system with massage jets for an exceptional shower experience.
  • Ceramic washbasin with vanity unit and chrome-plated single-lever mixer tap
  • Wall-mounted rimless ceramic toilet and toilet seat with automatic lowering, as well as a toilet cistern with an elegant glass and aluminum finish in white or black.

Plumbing connections:

  • Permanent wastewater connection for gray water from a high-pressure pipe below the floor
  • Permanent wastewater connection for black water from a high-pressure pipe below the floor
  • Permanent fresh water connection below the floor

Electrical system:

  • 230V charging connection
  • Electrical distribution board with fuse box Residual current circuit breaker and 6 individual fuses
  • Sockets:
    6 in the living room and kitchen, 1 in the bathroom, 2 in the children’s/guest area, 2 in the sleeping area, 2 in the outdoor area
  • Satellite antenna cable with connection socket in the living room
  • Lighting:
    6 in the living room and kitchen, 1 in the bathroom, 2 in the children’s/guest area, 2 in the sleeping area, 2 in the outdoor area
  • Washing machine connection

Solar system with battery storage for self-generated power:

  • 4 solar modules, each with 410 Wpm, made by Sunpro or equivalent, depending on availability
  • Battery storage with 2,150 kWh storage capacity and up to 2,000 watts output power (storage capacity expandable up to 8.6 kWh), made by SunLit or equivalent, depending on availability
  • 2 inverters, each with 800 watts output power, made by APSystems or equivalent, depending on availability
  • Using the integrated Wi-Fi or Bluetooth function – depending on the system model – the performance data of the solar system and the battery storage can be monitored and optimized in real time.

Heating/Hot Water:

  • Samsung Comfort air conditioning system with heating function (air-air-heat pump) with a heating output of up to 3.5 kW and 12,000 BTU with Wind-Free Cooling technology for even heating and cooling (energy efficiency class A++ for heating / A+ for cooling) with whisper mode, auto-clean function, and Wi-Fi function for smartphones with up to 68% energy savings thanks to inverter technology.
  • Electric hot water tank with a capacity of 25 liters
  • Electric underfloor heating

Central domestic ventilation with heat recovery:

The central domestic ventilation system with heat recovery combines state-of-the-art technology with efficiency, comfort and user-friendliness and ensures a healthy indoor climate.
Ventilation systems also offer other special advantages:
Due to the constant automatic exchange of air, windows do not need to be opened, which can significantly reduce heating costs. This advantage is also very important for allergy sufferers. If windows remain closed, pollen and dust have little chance of entering the living space. For hay fever allergy sufferers or asthma patients, a ventilation system is the best way to be able to live without symptoms, at least in their own home.

Interior/Furniture:

  • Compact kitchen with countertop, sink with faucet, combo cooktop with 4 electric burners, base cabinet, refrigerator-freezer, and dishwasher
  • Practical, order-creating storage stairs to the loft above the bathroom

Assembly/Installation:

Assembly/installation of the tinydomo on the site created by the customer/buyer Foundation/floor slab on the property, as well as connection of the downpipes for the roof drainage to the standpipes provided by the customer/buyer on site, and connection of the plumbing connections to the connecting lines provided by the customer/buyer on site. The electrical connection must be carried out by a locally authorized electrical company commissioned by the customer/buyer.

Building permit planning according to the regulations of the GEG consisting of:

Inventory

  • Examination of the foundations and eligibility for approval
  • Order and evaluation of current cadastral extract
  • Planning

Preparation of building plans

  • 1 virtual project meeting
  • Floor plan of your building project, including demolition plans if necessary
  • Building description
  • Preparation of the application for a building permit/change of use in accordance with the respective LBO:

Proof of authorization to submit building plans

  • Building application forms
  • Operating description
  • Building description
  • Construction drawings (floor plans, sections, views, site plan)
  • Incorporation of the fire protection concept of external specialist planners (if required)

Other:

The standard equipment can be optionally supplemented or modified upon request for an additional charge. Extensive options are available for the design of the facade, doors and windows, interior, bathroom, and furnishings.

All tinydomo models are equipped with our PickUp & Go System, allowing them to be easily transported to another location with a trailer at any time, in case you move later and want to take your tinydomo with you.

Delivery time is generally 3-4 months from receipt of the contractually agreed down payment of 30% of the purchase price.

Our current terms and conditions apply.

*The photos shown are sample photos, some of which may show optional extras and additional services that are subject to an additional charge.

Scroll to Top